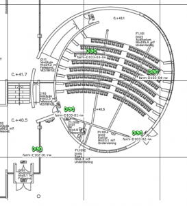
Tabletten (like in “a small, solid piece of medicine”) is an oval, 159-seat auditorium mostly used by the Department of Pharmacy. Wifi service is provided through four omni APs in the amphi shaped room, where ceiling height varies from normal to one-and-a half (a picture taken from the lower, left-hand entrance is included at the end).

In this environment, RRM did a poor job in spreading clients evenly across the APs: three of four clients would associate to a single AP, and the three other APs were idle in comparison. Far from an optimal utilization of resources, but it’s hardly a surprise – client distribution isn’t part of the algorithmic basis of Cisco’s RRM.

Turning over to static power management, and a period with power level adjustments followed, gradually levelling out the client distribution.

This table shows the 5GHz AP radio power settings on the graphed dates (in dBm):

The current settings certainly don’t guarantee an equal number of clients on all APs, as illustrated in the graph below, but there’s a sense of symmetry around the 30-client line. The abrupt changes (vertical lines) coincide with lecture breaks, but I have no data to explain the “mirroring” of the blue and gray lines.

